Casa semindipendente in vendita

San Francesco Al Campo, Via Torino
€ 144.000
6 locali 6 locali
341 Mq 341 Mq
2 bagni 2 bagni

Casa semindipendente in vendita

San Francesco Al Campo, Via Torino

Descrizione annuncio

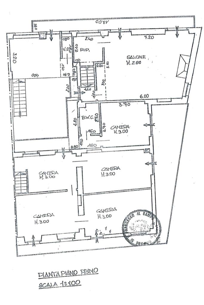
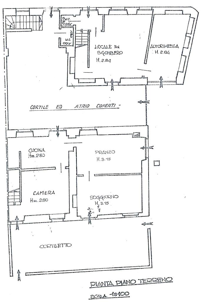
Nel comune di San Francesco al Campo, proponiamo in vendita una spaziosa casa semindipendente di 300 mq libera su tre lati, ideale per chi cerca ampi spazi e versatilità. Costruita nel 1885, la struttura conserva il fascino delle abitazioni storiche, con dettagli architettonici che raccontano la sua lunga storia.

Questa residenza si sviluppa su due livelli abitativi con dieci locali ampi e luminosi, permettendo una personalizzazione secondo le proprie esigenze; nasce come abitazione singola, ma l'immobile offre la possibilità di più suddivisioni, grazie ai tre accessi indipendenti e all'importante metratura. Completano la proprietà l'area esterna, un grande cortile coperto e un sottotetto grezzo. Al piano interrato è presente una suggestiva cantina con mattoni a vista e, al suo interno, un antico pozzo ancora attivo; è un elemento raro e prezioso, che oltre al valore storico offre interessanti possibilità di utilizzo.

La posizione strategica consente di godere della tranquillità del contesto circostante, pur essendo a breve distanza dai principali servizi e collegamenti. Questa proprietà rappresenta un'opportunità unica per chi desidera vivere in un contesto storico, con la possibilità di adattare gli spazi alle proprie necessità abitative o progettuali.

Mostra tutto

Nelle vicinanze

Trasporto pubblico Trasporto pubblico
San Maurizio Canavese
San Maurizio Canavese
2,6 Km
San Francesco al Campo (L'Assunta)
San Francesco al Campo (L'Assunta)
220 m
San Francesco al Campo (v. Torino)
San Francesco al Campo (v. Torino)
470 m
Farmacia Farmacia
Farmacia
920 m
Terrone
2,3 Km
Supermercati Supermercati
Crai EXTRA
100 m
Bar Bar
Bar del Moro
2,1 Km
Ristoranti Ristoranti
Londrina
1,2 Km
Aurora
2,2 Km
La Credenza
2,5 Km
Mostra tutto

Caratteristiche

Rif.:
61130929
Piano:
2 di 2 (Piano su più livelli)
Box:
1
Balconi:
1
Camere da letto:
5
Arredamento:
Assente
Mostra tutto
Prezzo Prezzo
€ 144.000
Rata mutuo Rata mutuo
€ 682 / mese
Proponi il tuo prezzoProponi il tuo prezzo

Classe Energetica

G
G
G
G
G
G
G
G
G
EP globale non rinnovabile:
521.23 kW h/m² anno
EP globale rinnovabile:
1.62 kW h/m² anno
EP invernale del fabbricato:
EP estiva del fabbricato:
Anno di costruzione:
1885
Riscaldamento:
Autonomo
Tipo impianto:
A radiatori
Tipo alimentazione:
Metano

Ti interessa visionare l'immobile?

Fissa un appuntamento  Fissa un appuntamento

Richiedi informazioni

Clicca su Leggi per aprire l'informativa
* Questi campi sono obbligatori

Calcola il tuo mutuo

Semplice e senza impegno
Anticipo

( % )
Mutuo

( % )

pochi semplici passi

inserisci i tuoi dati
Questionario completato
Grazie per aver richiesto un appuntamento senza impegno con un nostro Consulente del Credito e Assicurativo.

Hai inserito correttamente tutti i dati necessari e a breve riceverai una e-mail con un link da convalidare per inviare i tuoi dati.
Affiliato
Studio Imperial Sas
Via Vittorio Emanuele, 34/B 10077 San Maurizio Canavese (TO)
Via Vittorio Emanuele, 34/B 10077 San Maurizio Canavese (TO)
Zona: San Maurizio Canavese - San Francesco al Campo
Mostra su mappa
Orari: 09:00 - 12:30 15:00 - 19:30
Affiliato
Studio Imperial Sas
Via Vittorio Emanuele, 34/B 10077 San Maurizio Canavese (TO)

2026 Tecnocasa Franchising S.p.A. - P. IVA 08365160152 - Via Monte Bianco 60/A 20089 Rozzano (MI). Ogni agenzia ha un proprio titolare ed è autonoma. Privacy policy | Policy utilizzo | Cookie policy